이미지
이미지
CONVENTION & MEETING

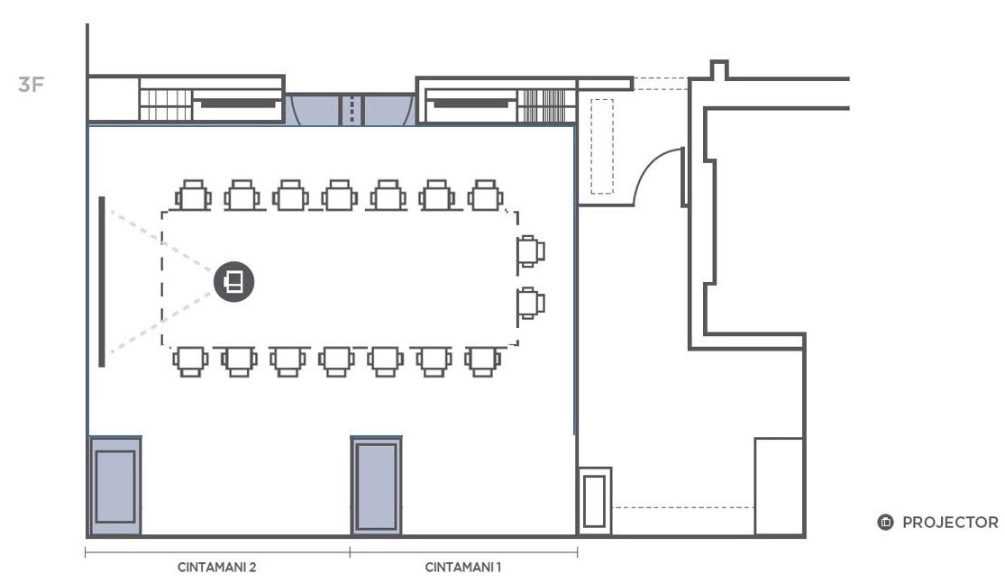
CINTAMANI

CINTAMANI

Located on the 3rd floor of the Grand Mercure, Cintamani is a high-class meeting room that combines luxury and modernity.

It can accommodate up to 15 people its 64m² size boardroom style space.

This exceptional elegance is offered not only for business but also for a moment's relaxation.

INFORMATION

Location
Grand Mercure 3F
Capacity
15 Persons
Dimension
Surface 64㎡, Size 9 x 7.1 x 3.6(m)
Reservation
02-2223-7020
E-mail
bqrsvn@seouldragoncity.com